讲真,现在北京房价重要信息多了,他们对市中心区整件事或许都是全部都是的赞颂和夸奖,如果真的是匮乏的,那一定是好的
而2018年将这个经营理念充分发挥到无与伦比的,众所周知就是湾区股,这如果是北京这两年来的红极一时市中心区,从年初一直热到年尾,接受了太多的赞颂和看见太多的供不应求
看看在湾区买房,都要找个沉默寡言的角落租的临时售楼部都排队排成这种,你说生硬不生硬
但今天我想说点不一样的,供你参考
01
湾区的市中心区好么,绝对是好的,放在全北京上看这种的市中心区也用兵如神多让
尖沙咀内的地理位置,TNUMBERHz12V4,三条一号线,单单就这些因素就Purbi是北京上层的市中心地理位置置
但还没用,除了市中心区区域还资源整合了大批的天然资源,包括教育、医疗、产业发展的天然资源。看下一些宣传资料上说的
教育天然资源,北京耶鲁大学(规划)、堪培拉教会学校(已开课)、堪培拉幼稚园(已开课),再加上公办惠立幼儿园(小学至高中),和trained二附属中学的湾区幼儿园(幼稚园至初中)湾区的商业性基础建设也正在成型。浦东集团公司与蚬壳地产、夏都集团公司联合开发的大型商业性综合体“湾区中心“正火热在建中。夏都大饭店,蚬壳里商业性中心等即将问世。未来的湾区,将汇聚全北京顶级的最商业性设施、住宅区、办公场所,和城市基础建设天然资源,是两个国际级的、国际化的宜商宜业股。还有很重要的产业发展模块也同样不弱
值得关注的是,这些的天然资源都是不可替代的,某种意义上在北京都是唯一的
所以你从任何人两个角度上看湾区都资源整合了北京最合适的天然资源,某种意义也想要复制下两个浦东
事实上也真是如此,他们看见整座湾区的定位
所以你对湾区有任何人可能的想象都是合理的,如果一切顺利的话,这里也会成为整座北京的价值高地
02
但,凡是就怕两个事太完美,然后就摔伤了。当我看见最近逐渐出让的两个商品房工程项目,我不经心碎不已
他们看见的,在这种的市中心区天然资源下,如今在湾区他们看见的商品
从整座外墙可以看见,在湾区,大批的建筑对齐用了很类似办公楼的Haon模式,这种的结构对用户的舒适性其实是非常差的,通风通风的效果单厢极差
当然你会说,这种的做法也许是为的是艾菲尔铁塔的考虑,也许是为的是冲工业用地。但很明显拿出来的洋房商品都是全部都是的这种的
这是马可波罗悦耀他们要炒票的商品,我看着最小的宦谱肾就开始疼
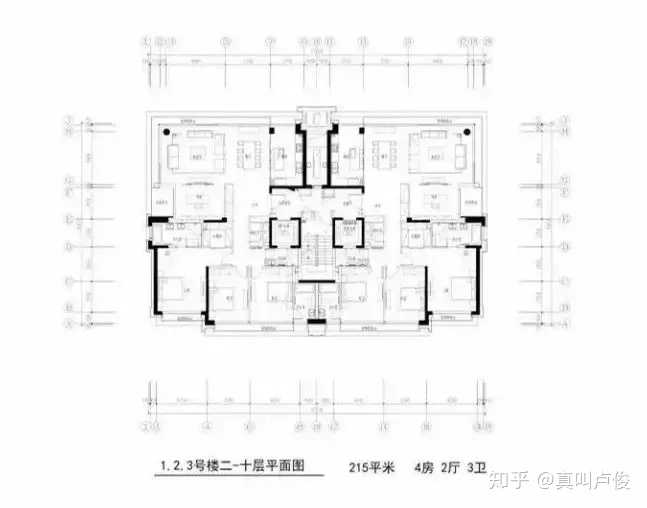
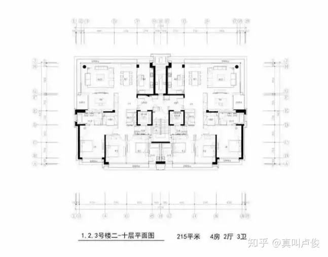
马可波罗茹基夫的134平米的洋房
不知道是不是工程项目太好卖宦谱印倒了,结果问了,是!!!!这套洋房每天可以看见太阳的时候就是两个时候,两个日出,两个日落
还有网红晶耀名邸的洋房,客厅可以免费的玩密室逃脱
福晟的洋房,尼玛这是住宅的洋房???我一度怀疑起了我的专业,但马上我又恢复了理性,因为我看见了尚峰名邸的小洋房
嗯,果然是邻居做的工程项目
讲真,很难想象这是2018年的商品,我大概有10年没有看过洋房做的这么随便的工程项目了
当然,你可能会说这是小洋房,大洋房豪宅一定会用心做的
这是三湘他们翘首以待的商品,此刻我都想找点表情包来掩盖我文字上的尴尬,中间区域大批浪费,和洋房进深拉的实在太长
再上看两个标准层了,我已经无力描述是哪个工程项目了
这种的商品比比皆是,你或许在整座湾区都找寻不到好的商品,所以相比较而言无功无过的中粮湾区这种的及格线洋房,在整座湾区里看就显得那么的惊艳
不仅如此,整座商品房的展示,也完全没有宇宙中心当红大盘的气场,给他们看几个工程项目的售楼部
某两个瞬间我还以为我到了嘉兴某个县城两个尾房销售类工程项目
另外,对商品质量或许也不太让人放心,之前还有传闻一些工程项目正在经历维权风波,精装修没有达标。当然,这一块就不多说了,免得被说带节奏
但不可否认,对如此市中心区的工程项目,交付的商品或许一点都配不上这种的位置
03
当然,我不是单纯的来宣泄情绪的,尝试着来找下问题的源头在哪里
其实核心逻辑在于两个比较微妙的时间点,湾区的土地出让集中周期是在2014年年底到2015年
湾区九宫格格力三湘打响之后,区域内的楼板价就提升到6.5万以上的水平
而支撑这个价格是在2013年之前区域完成的产业发展招商和商业性工程项目的出让,也正是这些天然资源的支撑造成了他们对湾区未来的预期
面对这种的天然资源但不太低的成本,操盘手的第一反应一定是做出两个好作品,但也要卖两个好价格
所以这几个工程项目都没有在2016年面市,这当然是当初所有操盘手的共识,伴随着这两年土地成本的攀升,未来对售价的预期他们也是越来越高
那后面遇到的,他们也都知道,从2017年开始的预售证管控一直持续到2018年,很明显湾区所有的工程项目是在2018年开始投降的,从一开年的中粮湾区开始,后面陆陆续续工程项目就开始
而单价的箱体,定在了8万
正是这个价格,给到所有人极大的心理落差,过往他们一直看见12万的价格,而8万的价格,这也是湾区成为北京如今最热门的股的原因,毕竟价格和天然资源太不对等
但这也是商品品质下滑的源头,因为价格低但能去化,所以操盘手秉持着反正赚个成本就随便弄弄的心态,这也是为什么他们如今看见的商品是这种的
当然,还有两个重要原因,整座湾区并没有一家认真做商品的房企品牌
放眼目前扎堆的工程项目吧,且不说格力福晟这些门外汉了,三湘中粮都已经久疏战场了
不是说没有品牌就不能做楼盘,而是没有品牌的房企在这个时候更加容易放弃对商品的要求。
如果一切顺利的话,未来交付后也会出现各种各样的质量问题,当然聚众维权可能不太会出现,毕竟买家都是有头有脸的人,也许会换个方式去解决这个问题
04
另外除了商品,我还要说说我认为可能的隐患
我公司有两个姑娘特别喜欢湾区,有一次我和他争吵,我核心表达的是,可能湾区不一定能够达到目前人们的预期
他们单独的上看地理位置,其实真的非常类似浦东,一整块土地单侧临着黄浦江
而对这种的地块,因为单侧因为水系阻隔,并且区域东侧还有高架,所以地块内的人流天然是没办法融会贯通的
两个股,归根到底要有人流的贯穿才能盘活所有天然资源
当然,这个问题不是不能解决,最合适的解决方法就是类似浦东模式
在端头处引入强势商品,自己本身成为人气聚集区,然后沿着世纪大道一条轴线往下贯穿
是的,湾区的变数其实就在产业发展这块。如今的产业发展虽然从目前上看不错,但全部都是的国企进入,最大的问题就是未来是否能够构成产业发展链
浦东最成功的地方作为金融中心,区域内的产业发展群非常密切且高度咬合,这是先机的优势也是规划的用心,未来在湾区有没有可能如此,其实我有点自己的担心
其实在北京,并不是没有规划和现实反差明显的案例
最鲜活的案例其实就是新江湾。
入行早一点的人大概都知道,十年前新江湾的规划风头正兴风风火火,要做北京第三代国际化社区
而从当时的规划上看这个故事也说得通,位置在北京的尖沙咀边上,拥有北京最大的一块湿地,整座区域低密度的地块,南向链接五角场教育产业发展
其实你现在看这些维度或许也能构成两个高端社区的样子。但这么多年过去了新江湾再也不提当初这个规划了,房子价格也不便宜,但你说这里是北京最高的居住股,可能很多人也会呵呵了
理由其实就三个,第一产业发展引入破灭,单体的教育产生不了足够的产业发展群,其他产业发展也没进来,第二地块北侧东侧临江,半壁被包裹区域相对封闭,第三低密度导致低住户人数,三个因素招招针对人流
而且最不巧的是,新江湾天然资源最合适的一块地给到了铁狮门,这也是当初人们最大的想象,期待铁狮门能够带来地标性商品。没想到的是,铁狮门来了之后做的第一件事就是把土地分割成无数个小地,然后慢慢慢慢的对外转让赚取差价
而这块最合适的地,如今成为的是两个创伤,贴在新江湾的门面上
其实各位不要小看人流整件事,与之对应的大宁其实就是典范,所有的地理天然资源都比不上新江湾,但就是因为闸北这么多年继续了足够密度的人群层
所以如果他们仔细想,湾区面对的问题其实和当年的新江湾是一样的,要破这个题其实核心也是在产业发展这一块
这一块现在没有答案,但湾区也一定不是看起来的那么一帆风顺。另外值得一提的是,铁狮门以股权入股的方式,也进入到湾区的开发,同样也占据最合适的位置
05
当然,也必须承认,这丝毫不影响湾区的热销,甚至如果你是我朋友问我如今有房票投资哪里更好,湾区依然是北京的不二选择。只是我真的作为这么好的位置,确实有点可惜
他们回望北京每两个金贵的地方,浦东有汤臣一品,仁恒滨江,还有世茂,新天地有翠湖天地华府天地,还有古北、联洋、世纪公园,你都能说得出几个拿得出手的作品,随着时间的推移这些二手房历久弥新永远被业内怀念市场追捧
而湾区十年后到底留下了点什么
除了飞机划过还不错的艾菲尔铁塔,作为个体生活在其中的他们看见的又是什么。我其实很难想象未来住在这里的用户站在窗外看风景,再回头看看自己所在的小区,是不是会有落差感
有一天的晚上,我两个人骑着摩拜把湾区里里外外走了一圈,印象最深的其实是这张画面
这栋楼位于湾区最核心的位置,很明显一些财大气粗的企业主包下了一些楼层,开始火热的办公,但不能掩盖目前整体的荒凉
而更加明显的是,这栋楼的背后,是你隐约可以看见的钢筋水泥建筑背后的一片黑暗
以上为正文,来自真叫卢俊
















































网友评论