鍘熷壇鏍囬锛?021娣卞湷瑙傛緶銆愭婧尯娴锋咕鍩庛€戞柊鐩樿灏芥儏鍐碘€斿畼缃?娴锋咕鍩庝竴鍗冧竾鍒繕浜嗕簡銆愰潪瀹樻柟銆?/p>
姊佹邯鍖烘捣婀惧煄锛?/p>
琚О浣滆婢滅増鐨勨€滅ⅶ妗傚洯鍩庘€濓紝
涔熸槸鈥?020骞磋婢滃€嶅彈娉ㄧ洰鏂扮洏鈥濄€?/p>
鐢辨繁鍦虫捣婀鹃泦鍥㈠叕鍙稿拰姊佹邯鍖烘潙浼佸悎浣滃紑鍙戯紝
鍘熸槸姊佹邯鍖洪緳灞卞伐涓氬洯鍙婃尝娑涘煍宸ヤ笟鍥紙鍥涘尯锛夋柊鍖哄煄涓潙妯″潡銆?/p>
鎬讳綋瑙勫垝鎵撻€犲嚭涓烘繁鍦充笢閮ㄧ殑宕柊涓句笘闂诲悕鐢熸€佸瀷銆?/p>
浠ュ悗瑙傛緶鐨勪繚鍒╁湴浜enfeld鍜屼簲閲戝煄澶囧彈甯傚満楂樺害鍏虫敞锛?/p>
楂樺害鍏虫敞娴锋咕鍩庣殑鏁扮洰鏇翠綍鍐甸粦楂紶鑰岄€婁簬锛?/p>
涓嶈鍏舵暟缃戝弸宸叉槸鍏撮珮閲囩儓鎯崇湅涓€鐪嬫捣婀惧煄銆?/p>
Nenon灏嗗鏄娴锋咕鍩庣殑 宸ョ▼椤圭洰璇﹀敖銆佸勾浠姐€佷骇鍝佷环鏍笺€佹磱鎴裤€佹枃鍑€佸熀纭€寤鸿銆佺患鍚堟€ч娴嬬瓑
娴锋咕鍩庨煢璋㈠垪+宸ョ▼椤圭洰濡傛槸璇?/p>
娴锋咕鍩庡伐绋嬮」鐩叡涓昏鍖呮嫭浜斾釜妤肩洏锛?/p>
宸ョ▼椤圭洰缂栧彿鍒嗗埆涓哄搴勯晣銆佺彂鍥€佺徍鍥€佺幒鍥€佹捣婀惧ぇ妤硷紙鍥涙湡锛夈€佺懅鍥紙鍥涙湡锛夌瓑銆?/p>
寮€鍞妱搴曟搴忓ぇ鏈虹巼渚濆簭鍒嗗埆涓哄搴勯晣銆佺幒鍥€佺懅鍥€?/p>
鐜伴樁娈佃幏寰楁渶鏂版秷鎭細
8骞村簳瑕佸紑鍞殑涓烘捣婀惧煄涓夋湡澶忓簞闀囷紝
寮€鍞崟浠峰彲鑳藉湪5.5W/m虏宸﹀彸+5000瑁呬慨璐癸紝
澶ф満鐜囧湪5鈥?.5W涔嬮棿
褰撶劧锛?/p>
鏈€缁堝勾浠藉拰浜у搧浠锋牸浠ュ悎浣滃紑鍙戝晢鏈€缁堢粨鏋滀负鍑嗭紝
涓昏鐢?鏍?3-43灞傞珮鐨勪綇瀹呮ゼ锛堝惈1鏍?3灞備繚闅滄埧锛?/p>
鍙?2鐝辜鍎垮洯缁勬垚锛屽悎璁?72鎴枫€?/p>

缃戜笂鍥剧墖

缃戜笂鍥剧墖

缃戜笂娴锋咕鍩庢晥鏋滃浘
鍓嶄袱澶╁幓鐜板満韪╃洏锛?/p>
澶ф淇埌浜嗕竷鍏眰妤煎乏鍙筹紝
鎸夌収杩涘害棰勮2021骞翠笅鍗婂勾浜ゆ埧銆?/p>
鍛ㄨ竟閬撹矾涔熷湪澶ц妯$殑鏂藉伐褰撲腑锛?/p>
鐩镐俊涓€骞村悗鍛ㄨ竟鐜灏嗕細澶ф湁鏀瑰杽銆?/p>

宸ョ▼椤圭洰鍏ュ彛

鏂藉伐涓殑娴锋咕鍩庡伐绋嬮」鐩?/p>

闄勫伐绋嬮」鐩懆杈?/p>

娴锋咕鍩庨檮杩戠殑澶╄櫣鍟嗗満锛堜竴鍏噷宸﹀彸锛?/p>

璺濈娴锋咕鍩庝袱鐧剧背鐨勫崥鏋楀悰鐟?/p>
鍚堜綔寮€鍙戝晢娴锋咕闆嗗洟鍏徃鐨勫伐绋嬮」鐩ぇ瀹惰€崇啛鑳借锛?/p>
姣斿榫欏北娴锋咕鍩庛€佸悜鍗椔疯タ娴疯姳鍥€佹捣婀句腑蹇冪瓑锛岄兘鏄唬琛ㄦ€у伐绋嬮」鐩€?/p>
鐜伴樁娈?/p>
瑙傛緶娴锋咕鍩庘€滄墿瀹光€濆伐绋嬮」鐩凡缁忛€氳繃

鐧惧害鎴浘
鍥句腑鈥滄捣婀惧煄鏂板尯鈥濓紝涓哄湪寤哄伐绋嬮」鐩紝
鈥滄捣婀惧煄鎬讳綋瑙勫垝鏂板尯鈥濅负鎵╁閮ㄥ垎
鍊樿嫢閮介『鍒╂帹杩涳紝
鈥滄墿瀹光€濆悗鐨勫伐绋嬮」鐩皢涓昏鍖呮嫭澶ф湕灞辨柊鍖恒€佹尝娑涙郸鏂板尯銆?8宸ヤ笟鍥€佹柊涓拌嫅浣忓畢鍖恒€佽タ宀歌姳鍥€佽タ鍩斿洯锛屽ぇ閽熷北宸ヤ笟鍥紝搴欏潙宀楀尯锛?/p>
鎷嗛櫎鍗犲湴闈㈢Н69涓囧钩锛屽悕鍓叾瀹炵殑瓒呯骇鐢熸€佸瀷銆?/p>
鍚屾椂灏嗗鏁翠釜鏂板尯鐨勫煄涓潙寤鸿璧峰埌鎺ㄥ姩鍜屽甫鍔ㄥ崌绾х殑浣滅敤銆?/p>
瀛︽牎
鐜伴樁娈佃幏寰楀彲闈犳渶鏂版秷鎭紝
娴锋咕鍩庡鍙e鏍℃槸娣卞湷澶栧浗璇鏍°€?/p>
鎬讳綋瑙勫垝鐨勬槸涔濆勾鍒跺鏍°€?/p>
鍘诲勾灏辨渶鏂版秷鎭О娴锋咕鍩庡凡缁忔嬁鍒版暀鑲插眬绛炬壒鏂囦欢銆?/p>
绛剧害鏂伴椈涓鏄庣殑鏄寜鍦版鍒掓柊鍖虹Н鍒嗗叆瀛︼紝涔熷氨鏄湴娈电敓鎷涚敓銆?/p>
杩欐牱涓€鏉ワ紝
鏈€鐩存帴鍙楃泭鐨勫氨鏄捣婀惧煄銆佷繚鍒╁湴浜enfeld銆佸崥鏋楀悰鐟炵瓑灏忓尯銆?/p>
鐜伴樁娈碉紝
鏂版ˉ鐨勬柊鎴挎槸涓€寮€鍞嵆鍞絼锛屾墍浠ュぇ瀹跺鍗冲皢鎶勫簳鐨勬捣婀惧煄涔熸槸婊℃弧鐨勬湡寰咃紒
鍗冲皢寮€鍞殑澶忓簞闀囨磱鎴?/p>
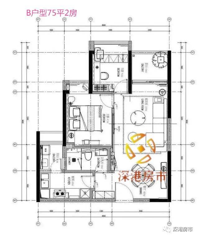
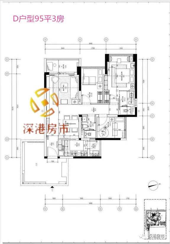
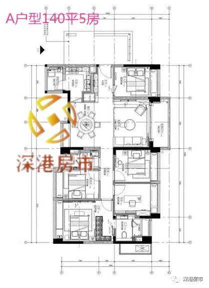
澶忓簞闀囧寘鍚洓绉嶆磱鎴匡細
涓€銆佺害72骞虫柟绫充袱鎴裤€?/p>

浜屻€佺害95骞虫柟绫充笁鎴裤€?/p>

涓夈€佺害120骞虫柟绫冲洓鎴裤€?/p>

鍥涖€佺害140骞虫柟绫充簲鎴裤€?/p>

涓€銆佷簩鎵嬫埧浜у搧浠锋牸
鐜伴樁娈垫柊鍖轰綇瀹呭緢灏戯紝
闄勮繎鐨勬柊鐩樻煆鏋楀悰鐟炪€佷繚鍒╁湴浜enfeld銆佷簲閲戝煄鍥涙湡绛夋柊鐩樺潎宸插敭缃勶紝
浠ュ悗鏂版埧寮€鍞潎浠风害涓?.4涓?骞斥€?涓?骞充箣闂达紝
鑰岄檮杩戠殑浜屾墜鎴垮潎浠风害鍦?鈥?涓?鐨勫尯闂达紝
鏈€楂樺崟浠峰湪6涓?骞炽€?/p>

缃戜笂鏂扮洏鎴浘

涓師缃戜簩鎵嬫埧浠锋埅鍥?/p>
鏂板尯+宸ョ▼椤圭洰缁煎悎鎬х偣璇?/p>
瑙傛緶鏂板尯鏄疂瀹変汉鍙f渶澶氱殑鏂板尯锛?/p>
澶у瀵硅婢滄渶鐩存帴鐨勫嵃璞″氨鏄?宸ュ巶+鍐滄皯鎴裤€?/p>
浣忓畢灏戯紝鍚勯」缁忔祹鎸囨爣鎺掑悕闈犲悗锛屼笉鎬庝箞寮曚汉楂樺害鍏虫敞銆?/p>
鑷€滃ぇ绌烘腐鈥濇€讳綋瑙勫垝鍑烘潵鍚庯紝鎵嶉€愭笎璧拌繘妤煎競鐑璇濋銆?/p>
瑙傛緶鍖烘棫鏀硅緝澶氭€讳綋瑙勫垝杈冩櫄锛屼綇瀹呭伐绋嬮」鐩皯锛?/p>
杩戞湡鐨勬柊鎴夸簲閲戝煄銆佷繚鍒╁湴浜enfeld銆佸崜瓒婁腑瀵般€佷含鍩哄尽鏅彂搴瓑鍒氶渶浣忓畢锛?/p>
鍩烘湰涓婂凡鍏ㄩ儴鍞絼锛?/p>
鎵€浠ワ紝瓒呭ぇ宸ョ▼椤圭洰娴锋咕鍩庣殑鍒版潵锛?/p>
灏嗕細浣挎柊鍖哄垰闇€闂鑾峰緱鏀瑰杽銆?/p>
鐜伴樁娈垫潵鐪嬶紝
瑙傛緶鏁翠釜鍖哄煙鏈潵鍑犲勾灏嗗浜庝竴涓缓璁惧彂灞曠殑闃舵锛?/p>
鐢熸椿銆佸晢鍔°€佷骇涓氱瓑鍚勬柟鐜伴樁娈甸潰纭疄涓嶆€庝箞鏍凤紝
浜ら€氶亾璺篃鍦ㄥぇ鍔涙€讳綋瑙勫垝寤鸿涓紝
鎵€浠ワ紝
瑕佹兂鏂板尯鍚勬柟闈㈠熀纭€寤鸿鎴愮啛鍜屽畬鍠勮繕寰楅渶瑕佹椂鏃ャ€?/p>
娴锋咕鍩庢槸闆嗕綇瀹呫€佸晢涓氥€佷骇涓氱爺鍙戠瓑澶氱涓氭€佷负涓€浣撶殑浜т笟鐢熸€佸瀷銆?/p>
闄勮繎杩樻眹鑱氱潃澶╄櫣鍟嗗満銆佸舰鑹插煄銆佷笘绾竾浼楀箍鍦虹瓑鍟嗗満锛?/p>
鍔犱笂娣卞鍚嶆牎鍔犳寔锛屾湭鏉ユ綔鍔涜繕鏄潪甯镐笉閿欙紒杩斿洖鎼滅嫄锛屾煡鐪嬫洿澶?/span>
璐d换缂栬緫锛?/p>
网友评论