原副标题:2021主页:深圳【宝盈天宸长廊】——新盘详细情况—官网!
工程项目地产商为深圳市富思源房地产开发股份有限公司,深圳市世纪鹿霍投资产业发展股份有限公司的控股控股公司,隶属深圳市宝盈集团。
工程项目为PR320工业园城中村模块的三期,位于宝安区龙岗市中区PR320工业园,宝安大街与康体路交汇点,探测车铁3号线塘坑站,占地约2.3万㎡,总建面约15.6万㎡,包涵写字楼、商务人士公寓楼、保证房及商业等商业模式。
深圳-宝安区 | 登记名:宝盈天宸长廊
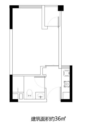
主流产品面积:科水狼36㎡公寓楼产品

工程项目工业用地5.2,城市绿化30%,总体规划停车位700个,总体规划数约525户,车位比超过1:1。
总体规划有1栋A座、1栋B座、1栋C座(迁离房)、2栋、3栋A座(保证房)及3栋B座超高层,对内转卖的是1栋A、B座写字楼及2栋、3栋B座公寓楼。
地理位置
2015年,宝安区召开新恒常、新宝安、新功能定位,建设深圳东部技术创新中心——《深圳市宝安区综合产业发展总体规划(2014-2030)》概要。
总体规划明确了宝安未来产业发展的四大战略:“中高档助推、技术创新驱动力”、 “区域协作、葵花”、 “天柱峰润、产城结合”、 “产业深化、渐进式蓝绿藻”、 “市中区社区再生、资源共享资源共享资源”;总体规划了“决意、同轴、两城、四交通枢纽、多元化”的空间布局;将构筑“一核梅利尼远距”的产业空间体系。
工程项目所处的龙岗新区将被打造出成为“龙岗商业文化中心”,是连接“宝安综合服务中心”与“布吉商业文化中心”等区域的重要节点。
除此之外,眼镜和文创产业也是龙岗的特色产业。

值得一提的是,新区还将打造出阿波罗未来产业城,总体规划范围17.21平方公里。阿波罗未来产业城是深圳市首个未来产业城,也是深圳首个以军民结合为主题的产业城,总体规划分为三个圈层,分别为启动区、核心区和产业城。
2019年年初,宝安区政府发布的消息,对阿波罗未来产业城进行进一步总体规划。未来,该新区将重点打造出“两轴一片”空间格局。
“两轴”指南北向产业发展轴依托坪南路,重点打造出城市公共服务轴;东西向产业发展轴依托沙荷路,重点打造出产业功能拓展轴。“一片”指结合园山风景区的自然禀赋,打造出一个文化旅游运动休闲的森林小镇。
交通
工程项目位于主干道宝安大街边,毗邻宝安大街及水官高速等高(快)速路,自驾到罗湖、福田较为便利,到南山、宝安,就比较远了。

距工程项目最近的地铁是3号线“塘坑站”,步行约270米,穿过天桥就到了。
另外,工程项目距在建的地铁14号线四联站步行约800米。
地铁14号线是深圳城市轨道交通四期工程重点建设工程项目,起点位于福田中心区岗厦北交通枢纽站,经罗湖和宝安两个区,止于坪山区沙田站,线路全长50公里,共设车站17座。未来可与市轨道交通2、3、5、7、10、11、16号线换乘。
商业
工程项目自带建面约2.3万㎡商业,部分商业会转卖作办公用,用来经营的只有底层裙楼商业,约7000㎡。
周边有开业多年的信义天虹及2013时尚广场等,可以满足日常生活所需。不远处的麟恒中心广场商业引入了沃尔玛、优衣库、海底捞和麦当劳等品牌,一二期商业建面约8万㎡左右。

教育
工程项目周边有不少学校,如六约学校、塘坑学校、梧桐学校及龙岗高级中学。整理排名一般,新区教育资源较弱。
目前工程项目小、中学学区划在六约学校。六约学校建于1931年,于2010年升级为九年一贯制学校,有30个教学班,在校学生1650人。升学率一般,普遍学校升学率不高是深圳很多学校的痛点。

医疗
工程项目附近有宝兴医院、PR320妇产医院(非三甲医院)及不远处的宝安区第七人民医院(二甲医院),医疗水平一般。
据政府公示招标公告,宝安区第七人民医院将启动迁址重建,选址地点位于龙岗市中区六约北新区,深坑路与红棉路交汇点,地块面积约5.0万㎡。医院建成后,将改善龙岗市中区医疗资源短缺的情况。
文娱
工程项目周边文体休闲资源主要有六约公园、龙岗文体广场等,并不算丰富,但基本能满足日常休闲的需求。
龙岗文体广场是附近居民主要的休闲活动场所,有篮球场、儿童游乐区等设施。

深圳-宝安区 | 登记名:宝盈天宸长廊
主流产品面积:科水狼36㎡公寓楼产品

工程项目公寓楼样板房实景图

返回搜狐,查看更多
责任编辑:
网友评论