开发商简介
根据项目现场施工标示牌显示,「信义君御山居」项目发展商为「深圳市信发房地产开发有限公司」,该公司实为「深圳市信义控股集团有限公司」和「深圳市坂田实业集团股份有限公司」共同出资组建,其中信义集团以90%的股份比例控股该公司,也就是说君御山项目是一个房企和当地街道办共同合作开发的项目。
信义控股集团成立于1992年,凭借20多年来的开发经验所积累的优秀的产品研究能力、设计及施工管理能力、营销策划能力,获得客户的高度信任会颁发的“全国质量·服务诚信示范企业”及“全国行业质量示范企业”等称号。
在深圳,信义地产开发的项目主要集中在龙岗区,像信义金御半山、信义嘉御山、信义御城、信义湛宝广场、信义银信中心、信义锦绣花园、荔山公馆等均是关注度比较高的住宅社区。近两年信义似乎低调了很多,一直没有新项目入市,此次的信义君御山项目算是一个惊喜。

项目简要
信义君御山项目位于深圳市龙岗区坂田街道,坂田北片区三号路与规划中的杨美路交汇处。项目东面临近东面紧邻杨美路(规划),南面临坂田三号路,并与坂田文化广场及华为荔枝公寓相对;东北面是另一在建项目“深圳科创谷”之称的乐荟科创中心;东侧为神舟电脑企业的产业园地块(规划中),不远处则是深圳科学高中。

信义君御山居占地面积约2.6万平米,总建面约12万平米,社区主要由7栋住宅楼(高24-31层,80-100米)及一所3层高的幼儿园教学楼组成。其中,住宅建面约7.6万平米,底层商业2580平米,幼儿园2400平米。社区地块大体呈“L”型,大致是自西向东逐渐降低高度,主要建筑沿着规划杨美路和坂田三号路两条主干道布局,整体格局相对狭长。幼儿园位于社区的最北端,规划为3层高,与住宅地块相对隔离,中间空出约1500平米的公共空间。

据悉,信义君御山居户均建面约85平米,套内面积小于90平米的有856户,占比约94.5%,估计以2-3房为主,主要面向刚需自住家庭。目前项目营销大厅也未正式开放,样板房暂未开放,认筹及开盘时间未定。

项目基础信息
销售单价:待定
销售户型:76㎡两房,87㎡-89㎡ 2+1房、112㎡ 3+1房建筑类型:住宅产权年限:70年占地面积:约26196.94㎡
建筑面积:约120922.71㎡交房时间:预计2022年6月30日前
交房标准:待定总 户 数:906户车 位 数:850个容 积 率:3.3%绿 化 率:≥40%物业公司:深圳市信勤物业服务有限公司开 发 商:深圳市信发房地产开发有限公司
项目配套介绍
商业:项目自带2580㎡的底层商业,对于一个拥有900多户的社区来说,这点商业体量肯定是无法满足购物需求的,只能说为社区日常生活购物增加了一点点便捷性,社区的购物需求依赖周边商业配套。
除自带商业外,项目附近的小区、村落及道路两侧均分布有较多零散式商铺,近距离满足日常生活购物需求是没有问题的,但要享受集中式商业配套距离稍远。如图,据不完全统计,目前项目1公里范围内无集中式商业购物中心,但可以覆盖到万科风情商业街、扬马综合市场及上雪商业街等街区式商业。项目2公里范围内整体商业环境较好,不过基本都集中在坂田地铁口和坂田北地铁口附近,距离项目较远,需要借助交通工具通行。

交通:轨道交通方面,项目距离10号线最近的是贝尔路站,步行约1.4公里,距离5号线最近的站点是杨美站,步行约1.5公里。所以,非常尬尴的是项目距离目前坂田已开通的两条地铁站点都不近,且距离还差不多。我的建议是你的目的地坐哪条线能少换乘一站就往哪边地铁站走。
道路交通方面,由于坂田的地理位置在深圳物理中轴,所以从项目驾车去各市区都是比较方便的,且耗时比较短。项目经坂雪岗大道--坂银通道可直接上北环大道,驾车去罗湖、福田、南山、宝安中心区都非常便捷。经布龙路+五和大道或者环城南路+南坪到龙华深圳北站商务区20分钟就能到。总体来说,项目的道路交通情况较好,但也不能忽略了深圳早晚高峰的拥堵......

教育:项目二期自带2400㎡的9班制幼儿园,学前教育在社区即可满足。另外经过我反复核对,根据2020年龙岗区秋季学区划分地图来看,项目是在深圳实验学校坂田校区范围内的(具体请以龙岗区教育局解释为准),这个学校是一所九年制学校,在坂田是比较有名气的。不过,要提醒大家的是项目属期房,距离交房还有1年半左右时间,到时可能会存在学区变化。
项目2公里范围内公里学校比较多,据不完全统计至少有9所公立,一所私立学校,涵盖小学、初中及高中,教育资源非常比较丰富。

医疗:坂田的医疗配套资源一直是一个很大的短板,除项目周边分布的社康和私人诊所外,项目2公里范围内有一所稍具规模的公立医院--坂田医院,该院由于规模不大,导致片区就医环境一直不是很紧张。
不过,大家也不用过多担心,项目2公里范围内有一所在建的三甲医院--吉华医院,该医院全称“港中大(深圳)吉华医院”,规划资料显示,该院占地面积近6万平方米,规划建设床位3000张,初步建设投资49亿元。吉华医院建成后将有效改善片区就医环境,补足医疗资源短板。

自然环境及休闲娱乐:坂田的公园配套资源一直以来也比较匮乏,你几乎说不出坂田有几个像样的市政公园来。项目斜对面有一个坂田文化广场,规模非常小。黄金山公园算是2公里范围内比较大市政公园了,不过走过去路程有点远。云里梦想乐园是今年才正式投入运营的一个游乐场,周六带娃去娱乐一下还是很不错的。总体来说项目的公园及休闲娱乐配套比较差,不是很便利且缺少选择性。
项目直线2公里处规划有两馆一院一公园(博物馆、图书馆、福利院、社区公园),建成后文化配套方面将有所补充。不过,这个目前还处于规划阶段。

项目户型介绍
76㎡ 两房两厅一卫户型
据悉,项目是有76㎡两房户型的,但目前尚未对外公布户型图,暂不知户型结构及整体实用率如何。根据现有户型分布情况看,首批入市的2栋4个单元没有76㎡两房分布,具体请以开发商公布为准。

左为88㎡ 2+1房两厅两卫户型
右为87㎡-89㎡ 2+1房两厅两卫户型


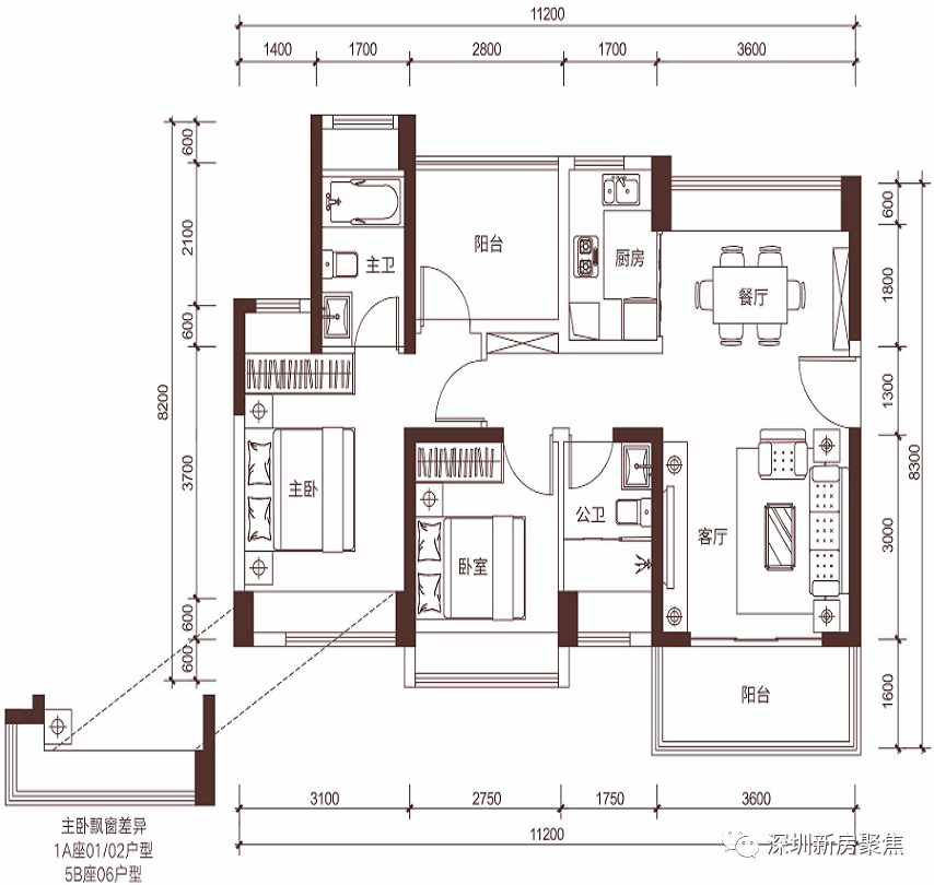
88㎡ 2+1房两厅两卫 该户型分布在1A座01/02户型、5A座03户型、5B座06/07户型;竖厅,厅出阳台,西南或东南朝向,南北通透,动静分区结构;无入户玄关;客厅和餐厅完全通透;厨房只有约4㎡非常紧凑;主卧通透性较好,且配备私卫整体功能性和空间感较好;两次卧相对,大次卧把飘窗利用起来约10㎡,可做成人房使用,小次卧只有约5.8㎡比较紧凑,可做书房或者儿童房使用;公卫是干湿分离的,实用性较佳;户型在结构及功能间布局上无明显槽点,整体偏紧凑。
87㎡-89㎡ 2+1房两厅两卫 该户型分布在1A座03/05户型、1B座08/09户型、5A座01/02户型、5B座08/09户型;竖厅,厅出阳台,主要朝向是南,5栋A座是西南或东南,动静分区结构;入户即餐厅无玄关;短开间大进深;U型厨房,把空间最大化的利用了;餐厨与客厅空间相对独立;主卧偏紧凑但不欠缺功能性,配备有干湿分离私卫;大次卧做成人房使用空间感较好,小次卧可并入主卧做衣帽间或书房使用,也可以独立做儿童房使用;公卫是干湿分离的,实用性较佳;户型在结构及功能间布局上无明显槽点,整体偏紧凑,此户型不如没有88㎡户型通透性好。

左为89㎡ 2+1 房两厅两卫户型
右为112㎡ 3+1 房两厅两卫户型


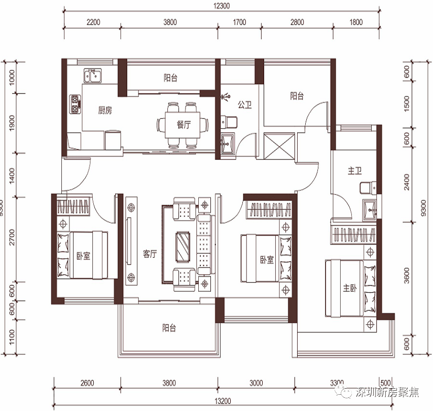
89㎡ 2+1房两厅两卫 ,该户型分布在5A座05户型;横厅,厅出阳台,东南朝向,动静分区结构;带有一点入户玄关,可设置一个收纳柜,增加使用性;餐厨和客厅具备一定独立性,横厅的动区部分采光面更大,且视觉效果上更宽敞;主卧大小适中,配备有私卫,功能性齐全;大次卧做成人房使用稍显紧凑,建议配合飘窗使用,面积能提高到8.6㎡;小次卧可并入主卧做衣帽间或书房实用,独立使用面积也能达到约8.3㎡,作为成人房使用亦可;公卫是干湿分离的,实用性较佳;户型在结构及功能间布局上无明显槽点,整体偏紧凑。此户型为项目唯一三房横厅户型,占比很少,比较稀缺。
112㎡ 3+1房两厅两卫 ,该户型分布在1B座06/07户型;竖厅,厅出阳台,东南或西南朝向,南北通透;带有一点入户玄关,可设置一个收纳柜,增加使用性;餐厅和厨房可做到完全独立,客厅3.8米开间大小适中;主卧空间充足,配备有一个空间较大的干湿分离卫生间,主卧阳台作衣帽间或书房使用均可,单独使用可能形成一个约8㎡的独立空间;两次卧大小基本均匀,作为成人房使用不会显局促,配合飘窗使用效果更佳;公卫是干湿分离的,实用性较佳;此户型为项目最大户型,整体宽敞舒适,结构及功能间布局上无明显槽点,户型占比较少,比较稀缺。
项目区域现状、规划和发展
项目位于龙岗区坂田街道坂田北片区,坂田集团对面,万科城的东南侧,华为荔枝苑西北侧。项目周边目前现状多以传统工业厂房和小产权房村路为主,除华为荔枝苑外,项目1公里范围内分布有万科城、金洲嘉丽园、中海日晖台以及今年入市的正展逸园商品房小区。目前片区生活配套多集中在坂雪岗大道西侧及沿线,项目周边生活配套资源相对匮乏。
值得注意的是项目的东北侧在建的《乐荟科创中心》,该项目是集合产品研发+办公+商业等形态,而且建筑面积超32万平,属于大型产业综合体项目,建成后可有效改善片区整体的商业、办公及居住环境。

信义君御山东北角,直线距离约500米范围内有一个大型产业综合体项目在建,那就是《乐荟科创中心》又称“坂田乐安居”项目,据悉该项目为龙岗国商企业有限公司所有,工程总造价16亿元,总建筑面积约56万平方米,包括1栋150米超高层产业研发楼及三层裙楼,1栋130米超高层产业研发楼,2栋100米高层宿舍楼及配套,4栋97米高层产业研发楼和2栋多层产业研发楼。该项目建成后将成为实现“乐商业”、“乐居住”、“乐工作”、“乐生活”,带动区域发展的坂田区域副中心。

坂田的医疗配套一直比较欠缺,不过,这个问题随着吉华医院的建成,也将补足医疗短板。吉华医院全名为港中大(深圳)吉华医院,该院是香港中文大学(深圳)直属附属医院,是一所集医疗、教学、科研、预防保健、康复于一体的三级甲等综合医院,占地面积近6万平方米,规划建设床位3000张,初步建设投资491300.91万元。
2019年12月28日,在龙岗区坂田街道吉华路南侧项目现场举行隆重的开工奠基仪式。2020年6月23日上午,坂田街道的市属医院吉华医院规划建设区域雪竹径加油站正式开拆,截至6月27日雪竹径加油站主体建筑已拆除完毕。目前项目正在有条不紊的建设中,预计在2年内就能投入使用。吉华医院建成后对补齐坂田民生医疗短板,推动街道医疗发展、提高居民幸福指数具有重要意义。

坂田以布龙路为界被大家称之为“坂田南”和“坂田北”两大片区,目前坂田北有已成熟的天安云产业群,坂田南有星河WORLD产业群,而坂田中部在产业方面还几乎是空白,缺少大型商业项目支撑。不过,随着万科世世畅自行车厂旧改和豪山庄两个旧改项目的落地,将为坂田中部增加一定体量的商业。
据悉,两个项目重建面积共约45万㎡,特别是世畅自行车厂旧改,有可能成为坂田的商业地标,加上富豪山庄和周边的商业体量,坂田地铁站周边很有可能会成为坂田中部的商业中心!目前万科世畅项目正在建设当中,首批入市的“万致天地”商办产品也已售罄,万科富豪山庄旧改也已立项,被正式列入更新计划当中。

雪象体育公园主要位于坂田街道坂雪岗科技城片区,项目红线跨坂田和吉华两个街道,占地面积约142 公顷,总投资约2.3亿元,于2018年11月1日正式开工,该公园定位为以休闲体育为特色的自然公园,划分为滨水休闲区、健康运动区及生态游憩区三个功能区。整个工程主要包括园内道路、园建、房屋建筑、绿化种植、体育运动设施、配套给排水及电气、智慧化系统等。其中,园路面积5.9 公顷,铺装广场约3公顷,公园绿地面积为127.7公顷(景观设计绿化面积28.4公顷),总建筑面积2770平方米。
另外,根据坂雪岗科技城核心区城市品质提升规划,坂田计划将周边6个相互独立的山体郊野(特色)公园,包括樟坑径郊野公园、岗头科技公园、甘坑特色公园、雪象体育公园、三联郊野公园、银湖山郊野公园等进行整体连通设计,打造成深圳中部最大的郊野(特色)公园群,对坂雪岗艺术中心与黄金山公园及周边地块进行一体化设计。

坂田街道正全力打造粤港澳大湾区科技产业与城市融合发展示范基地。整体形成“一核四翼”产业布局,依托华为为核心,“北翼”重点打造以云计算、 互联网、 物联网等信息产业为主导的 “互联网+”小镇示范区,形成新一代信息技术集聚区; "南翼” 加快推动集高端金融、战略新兴、文化创意等产业为主导的产融联盟引领区; “东翼" 积极打造以新一代信息通信技术、生态服务、 智能制造等产业为主导的总部经济集聚区;“西翼”规划打造机器人等工业4.0相关产业、生命健康产业为主导的战略新兴产业孵化区。

近年来,龙岗区全面落实全市区域协调发展战略,持续优化重点区域布局,形成了西片区以坂雪岗科技城为核心、东片区以大运新城为核心的 “双核引领、多轮驱动”发展格局。其中,作为“西核心”的坂雪岗科技城是“广深科技创新走廊”十大核心创新平台之一。
据了解,深圳市规划和自然资源局龙岗管理局自2016年开始组织编制龙岗区坂雪岗科技城的城市设计,2019年5月《龙岗区坂雪岗科技城城市设计规划实施方案》设计方案出炉,规划实施方案是未来3-5年坂雪岗科技城片区全面提升城区城市环境品质的行动计划,成果项目库根据项目的难易程度和重要程度,详细列明了3-5年的近期项目库。
未来的坂雪岗科技城,将构建更完整、更安全、更高效的电子信息产业链条,形成“巨头引领+链网协同+孵化创新”的多层次生态。同时,将围绕通信和智能终端两大优势领域、针对集成电路核心技术和薄弱环节、云与计算两大生态、人工智能与智能汽车两大市场,提出“强链、补链、延链、建链”四大举措及“一链一策”产业发展路径。

坂田是深圳高新技术产业带的重要组成部分,最能代表它的大概就是华为总部。然而,坂田有的不只是华为, 片区内还云集了新天下、康冠、航嘉驰源等知名企业在内的 362家国家级高新技术企业。此外,坂田还将围绕6大重点产业(集成电路、云与计算、通信、智能终端、人工智能、智能汽车),谋划建设系列标志性平台,以重大项目和重大平台引领产业发展。预计2025年,片区ICT产值达1万亿,工业增加值3600亿元,年均增速6%。
坂田将打造以 华为为核心的"一核四翼"产业布局, 已云集包括289万㎡ 天安云谷、 160万㎡星河world、 8.6万㎡ 云里智慧园、宝能科技园、神舟智慧园 等一系列高新产业园,聚焦了大量高端高智人才。如果说西有南山科技园,则中有坂雪岗科技城。去年8月,深圳市政府通过了《坂雪岗科技城扩容方案》,定位是"世界级", 意味着坂田更加辉煌的时代即将拉开序幕。

项目个人点评
信义控股集团旗下房地产业务主要在福建及深圳两地展开,主要根据地还是在深圳地区,在深圳信义有很多已运营成熟的社区,例如,坂田的信义嘉御山就是其在深圳打造的知名度较高的一个社区。信义的项目并没有特别明显的标签,其开发的项目在二手房市场大多表现平平,只有个别拥有较高关注度,如:嘉御山、金御半山等。虽然信义的二手小区热度不高,但信义的建造品质大家是看的见的,几乎找不到负面报道,在置业圈中有着不错的口碑和评价。其中金御半山的购物中心主体交由华润置地打造为万象汇运营,成为布吉乃至罗湖北片区域最具人气的购物中心。这几年信义的项目比较少,可能受限于土储的匮乏,逐渐淡出深圳新房市场的视角。坂田北的信义嘉御山居的出现,算是个不小的惊喜。从过往开发的社区案例和实地踩盘呈现来看,信义君御山居的整体格调是比较不错的。
项目周边多以小产权房和传统工业区为主,夹杂着部分空地和其它在建项目。片区目前居住氛围比较一般,缺少人气,具备便利性的配套资源也比较欠缺。2公里范围内除华为荔枝苑外,其它的商品房主要分布主要集中在坂雪岗大道西侧或沿线,人流基本覆盖不到项目所在地。总的来说,片区的气人、宜居性、生活配套资源都有待提升,有较大改善空间。
从数据上看,项目占地约2.6万㎡,总建面约12万㎡是一个小体量项目,但实地探访感觉还是挺不错的。小区楼栋基本呈现一字排开,展示面比较宽,看着有大社区的感觉。小区前后两侧均无超高层建设遮挡,每户都拥有较好的视野景观,整体通透性非常好,也不存在楼间距近对视的问题。小区容积率也只有3.3%,这个数值是远低于近些年新建商品房社区均值的,容积率是决定小区居住舒适度的关键值,越低说明小区宜居性越高。
项目附近缺少集中式购物场所,自带的2500多平的商业显然是无法满足社区购物需求的,片区的集中式商业多集中在坂田北地铁口一带和坂雪岗大道沿线两侧,距离项目距离稍远;项目距离10号线和5号线地铁口都是大约1.3-1.4公里,距离比较远,每天走路多少有点不现实,需要借助交通工具通行,不是很便利。项目道路交通网络便捷性较高,通过坂银隧道前往罗湖、福田、南山、宝安中心等各区都很便捷,路也比较顺;项目属于新房,学区暂不参与学区划分,根据现有学区划分项目地块是在深实验坂田学校学区范围内的,但具体还是要以最终教育局公布的结果为准,如果确实在深实验坂田学校,那学区就是一个很大的加分项;目前坂田南片区缺少优质医疗配套,需要等吉华医院建好才能改善片区医疗环境,总体来说医疗配套缺少选择性;坂田的公园配套一直以来也非常欠缺,目前就项目对面有个小广场,附近缺少市政公园配套,平时只能在小广场或附近小草坪休闲娱乐一下,周六末可借助交通工具到稍远一点云里梦想乐园、银湖山郊野公园游玩。
户型方面:据了解项目是有76㎡的两房户型的,但根据首批入市楼栋及户型分布来看似乎又没有它的位置,也有可能会放在下一批备案房源里面。项目主推88㎡-89㎡三房户型,定位非常清晰,主要面向刚需自住家庭。项目的户型设计没有明显槽点,依照户型图尺寸计算整体实用率也只能说是表现“平平”。依赖于项目的楼栋分布优势,所有户型均有着较的通透性及开阔的视野,东北和东南向都有大型山体自然景观资源,中高楼层都能看到,视野会更好。
项目均价 VS 二手均价:项目还没有拿到备案,具体定价未知,目前传出的吹风均价是68000元/㎡,暂且按这个数值来比较。对于这个项目我觉得要从两方面来比较,一个是非深实验学区,一个是深实验学区,不同学区二手房存在较大价差。项目1公里范围内的小区,视新旧程度不同,小区均价在5.6万/㎡至7.3万之间,综合状况较好的万科城均价是7.1万/㎡,从非深实验学区角度看,项目定价属于市场价范围,价格上面没有明显优势,加之现在新房普遍备案会低于周边二手均价,严格意义上来讲定价还有点价偏高了。目前深实验学区二手房挂盘均价在8.3万/㎡--9万/㎡之间,从这个层面来看的话68000元/㎡的价格优势就很明显,甚至可以用“远低”来形容。当然了,新房跟二手永远都没办法站在同一条线上去比较,因为都各自的优势都是无法改变的,至于怎么判断,大家需要有自己的主见。
坂田因为地理位置的先天优势,不少在市区工作的置业者都把购房意向地选在了坂田,在坂田经常能遇到福田、南山、罗湖等地的客户过来看房。在去年400万左右买两房,500万左右买三房在坂田还有不少可选的房子,今天同样的预算和需求已经很难在坂田上车了,选择性很少很少。今年坂田主要兑现的利好是坂银通道和地铁10号线开通,加之今年整个行情趋势的助推,导致坂田整体上涨幅度很大,平均至少也有70万左右,原本的小刚需摇篮也打翻了......
免责声明:本文如无意中侵犯了某方的知识产权,告之即删。返回搜狐,查看更多
责任编辑:
网友评论